|
62.23 millió Ft
|
|
| Alapterület | 62 m2 |
| Szobák száma | 3 szoba |
| Építési mód | Tégla |
| Állapot | Új építésű |
| Emelet | 1. emelet |
További paraméterek
CSOK igényelhető
Jó közlekedéssel- Kilátás: Udvari
- Fűtés: Hőszivattyú
- Szintek száma: 4
- Komfort: Összkomfort
- Energetika: A
Részletes leírás
Belvárosi, új építésű, prémium kategóriás társasházi lakás! Foglalja le most!
Társasház 4 lakószinten 26 lakással, 2 szintes teremgarázsban 26 parkolóállással, 1 irodával
Prémium anyagok, modern kivitelezés, hőszivattyús rendszer, A+ energetikai besorolás
Lift, belső zárt udvar
1. emeleti lakás jellemzői:
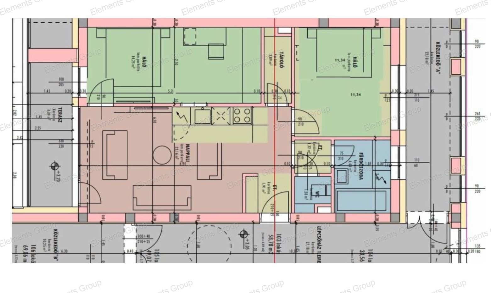
- 58,78 m2 lakótér
- terasz: 6,89m2, belső udvarra néző, Déli tájolás
- amerikai konyhás nappali + 2 külön nyíló hálószoba
- fürdőszoba WC külön, előtér
- háztartási helyiség
- választható belső burkolat, szaniter, világítótestek
- vásárolható teremgarázsi parkóló, tárolóheyiséges parkolóállás
- várható átadás 2026 ősz
Tágas és funkcionális. Energiahatékony, alacsony rezsi.
Kiváló lehetőség befektetőknek és magánszemélyeknek is!
Biztosított a modern városi élet, minden szükséges szolgáltatás, üzletek és szórakozási lehetőségek.
Bővebb információkért, teljes körű, ingyenes banki ügyintézéssel várom hívását!

