|
39.9 millió Ft
|
|
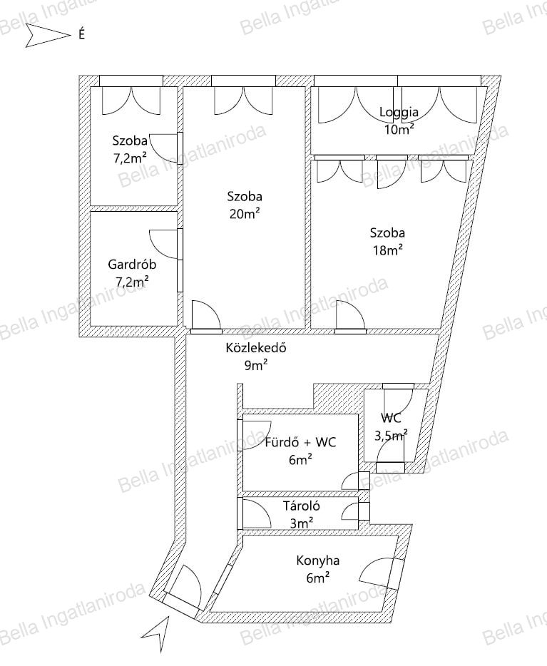
| Alapterület | 90 m2 |
| Szobák száma | 2 szoba + 2 félszoba |
| Építési mód | Tégla |
| Állapot | Átlagos |
| Emelet | 1. emelet |
További paraméterek
Jó közlekedéssel
Otthon Start 3%-os hitellel- Kilátás: Utcára
- Fűtés: Konvektor
- Bútorozottság: Bútorozatlan
- Szintek száma: 2
- Komfort: Összkomfort
- Internet: Szélessávú (>10Mbps)
Részletes leírás
Első emeleti 90 m2-es erkélyes polgári lakás, autóbeállóval eladó!
Csak nálunk!!! A Bella Ingatlaniroda eladásra kínál Kaposváron, a belváros szívében egy első emeleti 90 m2-es, erkélyes polgári lakást, autóbeállási lehetőséggel!
Kaposvár belvárosában jó helyen, a Corso bevásárlóközpont közelében kínálunk eladásra egy első emeleti, 90 m2-es, tégla építésű polgári lakást. A lakáshoz tartozik egy 10 m2-es loggia is.
Az ingatlanban két nagy világos szoba és két félszoba található. A 4 méteres belmagassága még tovább fokozza a tágasság érzetét.
A konyha mellett helyet kapott egy kamra is. A fürdőszobában és külön is megtalálható plusz egy wc+kézmosó.
A lakás fűtéséről gázkonvektor gondoskodik, a meleg vizet villanybojler szolgáltatja.
Az ingatlan rezsi költsége nagyon kedvező. Kiválóan alkalmas rendelőnek, irodának is.
Az ingatlanhoz a belső udvarban található parkolóhely, amit akár ideiglenes bejelentkezéssel jelképes összegért lehet évente bérelni.
Az ingatlan rengeteg lehetőséget rejt, alakítsa kedvére! Saját részre vagy akár befektetésnek is tökéletes választás!
Hívjon, ne maradjon le róla!!!! Remek ajánlat!!!
Amennyiben szeretné megtekinteni vagy további kérdése lenne, kérem hívjon telefonon! Köszönöm!
Tel: +36 70 431 2005
Azonosító: 238

