|
47.9 millió Ft
|
|
| Alapterület | 75 m2 |
| Szobák száma | 3 szoba |
| Építési mód | Tégla |
| Állapot | Kiváló |
| Emelet | 2. emelet |
További paraméterek
Áron alul
CSOK igényelhető
Jó közlekedéssel
Otthon Start 3%-os hitellel
Sürgős- Fűtés: Padlófűtés
- Szintek száma: 3
- Komfort: Összkomfort
- Energetika: B
- Internet: Optikai
- Akadálymentesítés: Nem akadálymentesített
Részletes leírás
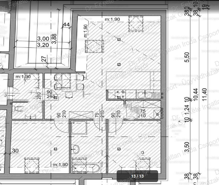
Azonnal birtokba vehető FŰTÉSKÉSZ tetőtéri lakás!
Alakítsd kedvedre! Győr – Szabadhegyen ebben a 9 lakásos társasházban vár ez
a nappali + 2 szobás, hátsó udvarra néző tetőtéri téglalakás fűtéskészen.
Bruttó: 75 nm / nettó 63,38 nm
Déli tájolás
Klíma előkészítés
Nagy térkövezett, füvesített közös udvar vár
Az autód zárt udvarban parkolhat. (+ 2 M Ft)
Közös költség 14 000 Ft / hó
Hívj és mutatom élőben is.
Műszaki infó:
- Falak: Leier 30 N+F tégla, Válaszfalak Leier 10 N+F tégla, lakások között hanggátló fal
- 15 cm homlokzati hőszigetelés,
- Födém 6 cm-es AUSTROTHERM lépésálló hőszigetelésre 6 cm vasalt fűtőbeton kerül
- Hőszigetelés: A tetőszerkezetbe 30 cm vastag hőszigetelés készül párafékező hőtükrös fóliával
- Vasbeton födém a szintek között
- Cserépfedés a tetőn
- Velux nyílászárók
- A fűtés kondenzációs gázkazán padlófűtés,
- A fürdőben törölközőszárítós radiátor
- Átfolyós gázkazán meleg a vízhez.
MINIMUM 50% ÖNERŐVEL RENDELKEZŐ VÁSÁRLÓT VÁRUNK!
Gyere, tegyél egy ajánlatot! Várom hívásod! Hartmann-né Viki Tel.: +36 20 481 3369

